- Available immediately
- Newly refurbished
- Double fronted
- Close to town centre
- WC & kitchenette
- Cellar storage
- Period features
- Grade 2 Listed
- Rateable value £10,750
- Gas central heating
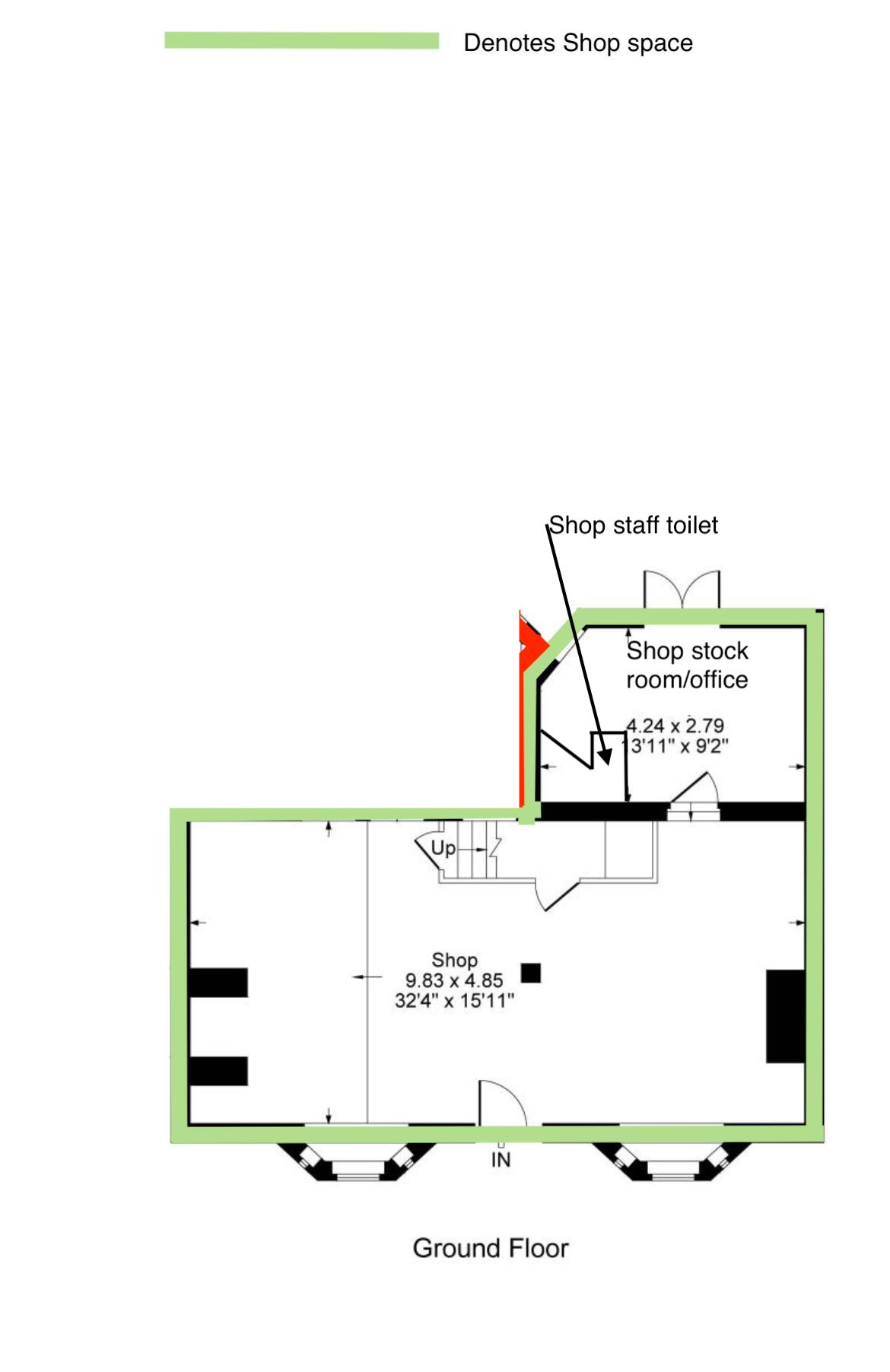
A newly refurbished double fronted retail unit close to the town centre. An attractive Grade 2 Listed building has been comprehensively refurbished to create a spacious ground floor retail unit with a net internal area of 585 sq ft. The unit benefits from Cotswold stone walls, exposed beams and an original fireplace. At the rear of the unit is access to the cellar and a separate WC and kitchenette. The quoting rent is £24,000 per annum (no VAT). Rateable Value of £10,750. The property is available immediately and would suit a variety of possible uses. For further information or to arrange a viewing please contact us on 01608 644 000.
Minimum Tenancy : 12 months
Business Rates
West Oxfordshire District Council, Business Rates
Notice
All photographs are provided for guidance only.
Chipping Norton is referred to as 'the gateway to the Cotswolds' and is a vibrant market town. The property is within walking distance of the town centre which offers a mix of national retailers such as M&S Food, Sainsbury's, Co-op, Aldi, WH Smith & Boots plus a variety of specialist shops, popular theatre, golf course, leisure centre, lido, cafes, pubs & restaurants. There are regular bus services to Banbury, Oxford, Stratford upon Avon & Witney. Kingham station offers mainline rail links to Oxford, Worcester & London Paddington (80 mins). Daylesford and Soho Farmhouse are both within easy reach.
/// surfer.tried.crumb is the what3words address for the best entrance. what3words has given every 3 metre square in the world a unique combination of 3 random words.
| Utility |
Supply Type |
| Electric |
Unknown |
| Gas |
Unknown |
| Water |
Mains Supply |
| Sewerage |
Unknown |
| Broadband |
Unknown |
| Telephone |
Unknown |
| Other Items |
Description |
| Heating |
Not Specified |
| Garden/Outside Space |
No |
| Parking |
No |
| Garage |
No |
| Broadband Coverage |
Highest Available Download Speed |
Highest Available Upload Speed |
| Standard |
18 Mbps |
1 Mbps |
| Superfast |
80 Mbps |
20 Mbps |
| Ultrafast |
1000 Mbps |
1000 Mbps |
| Mobile Coverage |
Indoor Voice |
Indoor Data |
Outdoor Voice |
Outdoor Data |
| EE |
Likely |
Likely |
Enhanced |
Enhanced |
| Three |
Likely |
Likely |
Enhanced |
Enhanced |
| O2 |
Enhanced |
Likely |
Enhanced |
Enhanced |
| Vodafone |
Likely |
Likely |
Enhanced |
Enhanced |
Broadband and Mobile coverage information supplied by Ofcom.