- Self contained office building
- Detached
- 9 allocated parking spaces
- Fibre optic broadband
- Rural views
- Available immediately
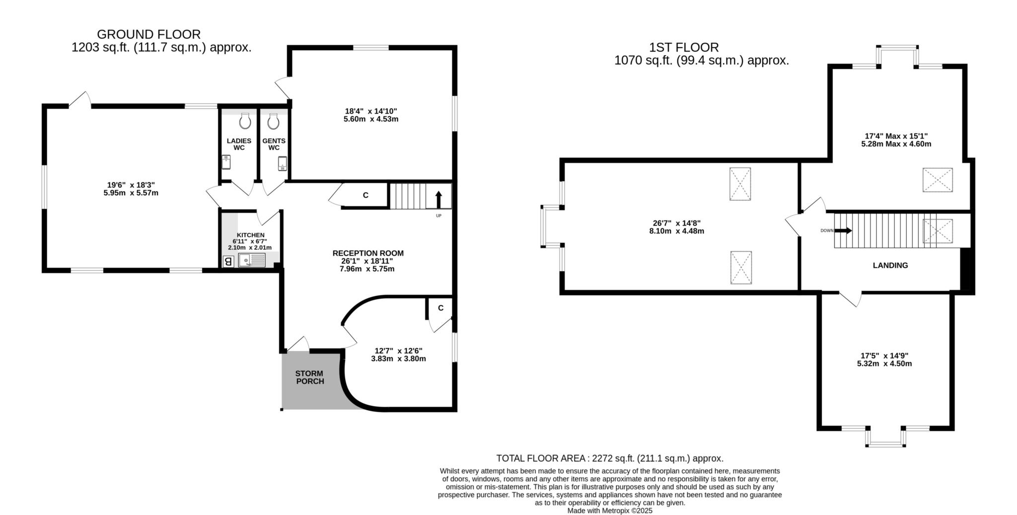
A detached modern office building on a well presented business park with ample parking, fast broadband & rural views. The office accommodation is spread over the ground and first floor and totals 2,302 sq ft (Net internal area). On the ground floor there is a generous entrance hall, reception/office, WC's, kitchen and two office areas. On the first floor there is a further large office space/board room and two directors offices. Outside the building benefits from landscaped grounds, 9 allocated parking spaces and a private terrace with views across open countryside. The property is available immediately on a new Internal Repairing & Insuring lease. The rent is £39,134 per annum exclusive of VAT, business rates and the service charge (circa £865 pa). For further information or to arrange a viewing, please contact Max Douglas [email protected]
Notice
All photographs are provided for guidance only.
Chipping Norton is referred to as 'the gateway to the Cotswolds' and is a vibrant market town. The property is within walking distance of the town centre which offers a mix of national retailers such as M&S Food, Sainsbury's, Co-op, Aldi, WH Smith & Boots plus a variety of specialist shops, popular theatre, golf course, leisure centre, lido, cafes, pubs & restaurants. There are regular bus services to Banbury, Oxford, Stratford upon Avon & Witney. Kingham station offers mainline rail links to Oxford, Worcester & London Paddington (80 mins). Daylesford and Soho Farmhouse are both within easy reach.
/// seemingly.bells.translated is the what3words address for the best entrance. what3words has given every 3 metre square in the world a unique combination of 3 random words.
| Utility |
Supply Type |
| Electric |
Mains Supply |
| Gas |
None |
| Water |
Mains Supply |
| Sewerage |
Private Supply |
| Broadband |
Cable |
| Telephone |
None |
| Other Items |
Description |
| Heating |
Oil Central Heating |
| Garden/Outside Space |
Yes |
| Parking |
Yes |
| Garage |
No |
| Broadband Coverage |
Highest Available Download Speed |
Highest Available Upload Speed |
| Standard |
9 Mbps |
0.9 Mbps |
| Superfast |
Not Available |
Not Available |
| Ultrafast |
1000 Mbps |
1000 Mbps |
| Mobile Coverage |
Indoor Voice |
Indoor Data |
Outdoor Voice |
Outdoor Data |
| EE |
Likely |
Likely |
Enhanced |
Enhanced |
| Three |
Likely |
Likely |
Enhanced |
Enhanced |
| O2 |
Enhanced |
Likely |
Enhanced |
Enhanced |
| Vodafone |
Likely |
Likely |
Enhanced |
Enhanced |
Broadband and Mobile coverage information supplied by Ofcom.