- Detached
- Ample car parking
- EV chargers
- Edge of town location
- Good transport links
- Stylish accommodation
- Well specified building
- Available from November 2025
- Rural views
- Easy reach of Soho Farmhouse & Daylesford
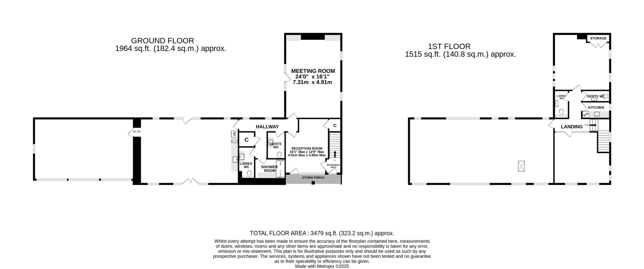
A substantial detached barn conversion on the edge of Chipping Norton offering 2,857 sq ft of Grade A office space. The well specified & stylish accommodation is spread over the ground and first floors and includes a reception area, private offices, meeting rooms and larger open plan office areas. There is a also a well specified kitchen and break out space and a private landscaped garden at the rear. Outside there is ample parking including two EV chargers. The space is available from Novermber 2025. The quoting rent is £55,000 per annum exclusive of service charge (£1,599 pa), Business Rates and Utilities. Please note the building is elected for VAT and is payable on the rent. For further information or to arrange a viewing please contact Max Douglas on 01608 644000 or [email protected]
Minimum Tenancy : 36 months
Notice
All photographs are provided for guidance only.
Chipping Norton is referred to as 'the gateway to the Cotswolds' and is a vibrant market town. The property is within walking distance of the town centre which offers a mix of national retailers such as M&S Food, Sainsbury's, Co-op, Aldi, WH Smith & Boots plus a variety of specialist shops, popular theatre, golf course, leisure centre, lido, cafes, pubs & restaurants. There are regular bus services to Banbury, Oxford, Stratford upon Avon & Witney. Kingham station offers mainline rail links to Oxford, Worcester & London Paddington (80 mins). Daylesford and Soho Farmhouse are both within easy reach.
/// grumbling.loud.lunges is the what3words address for the best entrance. what3words has given every 3 metre square in the world a unique combination of 3 random words.
| Utility |
Supply Type |
| Electric |
Mains Supply |
| Gas |
None |
| Water |
Mains Supply |
| Sewerage |
Mains Supply |
| Broadband |
Cable |
| Telephone |
Landline |
| Other Items |
Description |
| Heating |
Oil Central Heating |
| Garden/Outside Space |
Yes |
| Parking |
Yes |
| Garage |
No |
| Broadband Coverage |
Highest Available Download Speed |
Highest Available Upload Speed |
| Standard |
9 Mbps |
0.9 Mbps |
| Superfast |
Not Available |
Not Available |
| Ultrafast |
1000 Mbps |
1000 Mbps |
| Mobile Coverage |
Indoor Voice |
Indoor Data |
Outdoor Voice |
Outdoor Data |
| EE |
Likely |
Likely |
Enhanced |
Enhanced |
| Three |
Likely |
Likely |
Enhanced |
Enhanced |
| O2 |
Enhanced |
Likely |
Enhanced |
Enhanced |
| Vodafone |
Likely |
Likely |
Enhanced |
Enhanced |
Broadband and Mobile coverage information supplied by Ofcom.