-  Central location
-  Good footfall
-  Close to Market Square
-  Retail arcade
                                            -  Available from 1st February 2026
-  New flexible lease available
-  Viewing by appointment only
 
                                 
                                
                                
                                
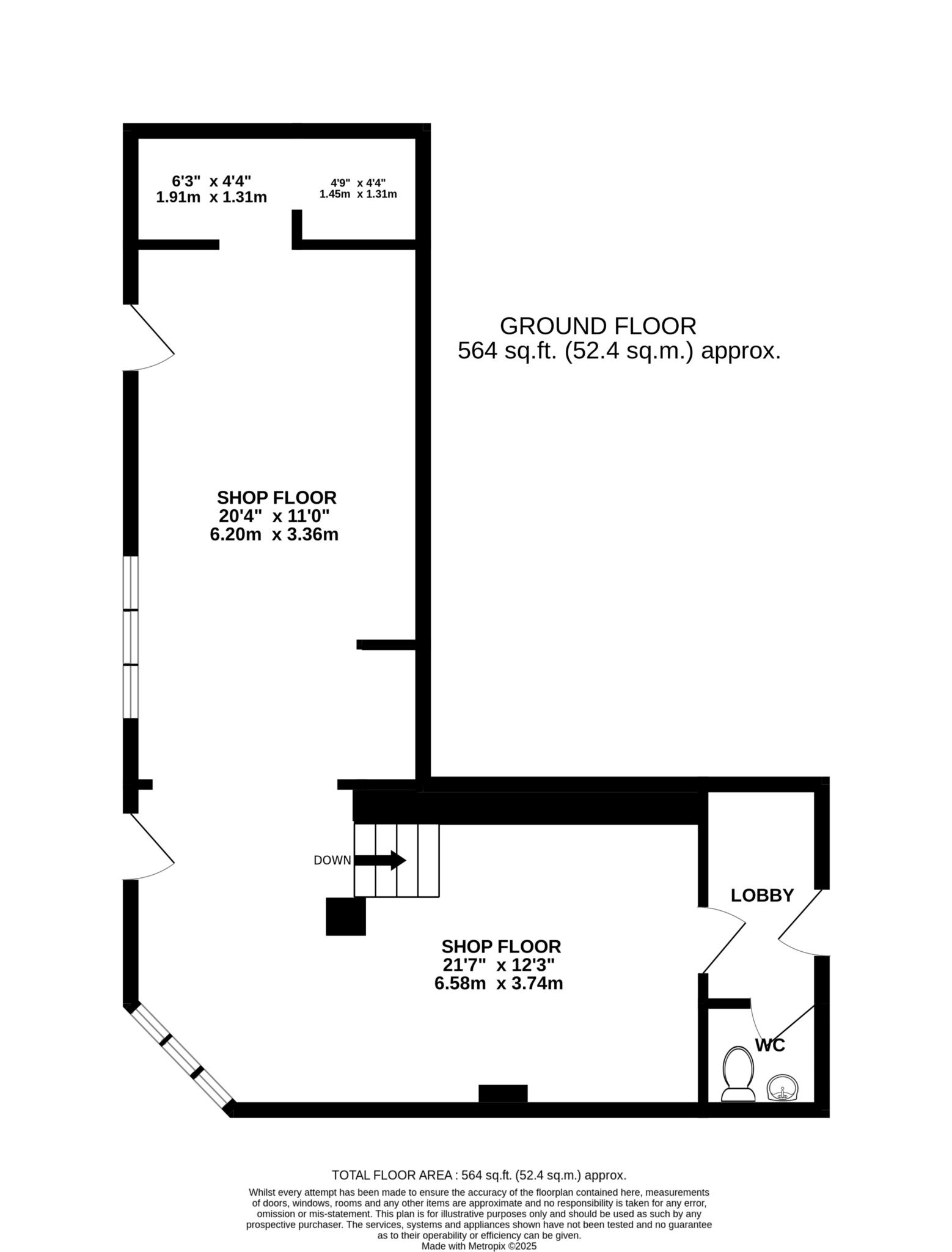
                                    A well positioned retail unit within a multi tenanted arcade situated on the bustling Digbeth Street.  Fountain Court is situated just off the Market Square of this much visited Cotswold town.  Digbeth Street has a variety of retailers including high street brands such as Mountain Warehouse and Fairfax & Favor alongside popular independent retailers such as The Cotswold Cheese Shop.  Unit 5 & 6 is a split level ground floor space including a kitchenette & WC.  The unit has a Net Internal Area of 507 sq ft (ITZA 446 sq ft) and  is available from 1st February 2026 on a new flexible lease.  The quoting rent is £17,000 per annum plus an annual service charge of circa £720.  The space would suit a wide range of businesses.  Viewing strictly by appointment only.  For further information, please contact Max Douglas [email protected]
                                
                                
                                
                                
                                
                                
                                
                                    
Deposit: £4,260.00
Minimum Tenancy : 12 months
Business Rates
Cotswold District Council, Business Rates
Notice
All photographs are provided for guidance only.
                                
                                
                                
                                                                
                                    
                                        
                                            
                                            
                                                
                                                    Stow-on-the-Wold is one of the most renowned towns in the North Cotswolds.  The former wool town offers a wide selection of excellent shops, pubs and restaurants.  The town is well situated to provide good access via road and rail to Birmingham in the north and London in the south. Stow-on-the-Wold provides day to day amenities including a large supermarket, doctors surgery, dentist, vets and more comprehensive facilities in Cheltenham and Oxford
                                                
                                             
                                         
                                    
                                    
                                        
                                    
                                 
                             
                                                                
                                
	
                                        
                                        
                                            
                                            /// premature.audible.married is the what3words address for the best entrance. what3words has given every 3 metre square in the world a unique combination of 3 random words. 
  
                                
                                
                            
                            
                            
                                                                
                            
                            
                                                                
                            
                            
                            
                            
                                
                                
                                    
                                        | Utility | Supply Type | 
                                    
                                        | Electric | Mains Supply | 
                                    
                                        | Gas | None | 
                                    
                                        | Water | Mains Supply | 
                                    
                                        | Sewerage | Mains Supply | 
                                    
                                        | Broadband | Cable | 
                                    
                                        | Telephone | Landline | 
                                    
                                
 
                                
                                
                                
                                    
                                       | Other Items | Description | 
                                    
                                        | Heating | Not Specified | 
                                    
                                        | Garden/Outside Space | No | 
                                    
                                        | Parking | No | 
                                    
                                        | Garage | No | 
                                
 
                                
                                
                                
                                    
                                        | Broadband Coverage | Highest Available Download Speed | Highest Available Upload Speed | 
                                    
                                        | Standard | 17 Mbps | 1 Mbps | 
                                    
                                        | Superfast | 80 Mbps | 20 Mbps | 
                                    
                                        | Ultrafast | Not Available | Not Available | 
                                
            
                                
                                
                                    
                                        | Mobile Coverage | Indoor Voice | Indoor Data | Outdoor Voice | Outdoor Data | 
                                    
                                        | EE | Enhanced | Enhanced | Enhanced | Enhanced | 
                                    
                                        | Three | Enhanced | Enhanced | Enhanced | Enhanced | 
                                    
                                        | O2 | Likely | No Signal | Enhanced | Enhanced | 
                                    
                                        | Vodafone | Likely | Likely | Enhanced | Enhanced | 
                                
            
                                Broadband and Mobile coverage information supplied by Ofcom.